7 Washington, Somerville, MA

$1,375,000

Previous Next

0.07

Acres

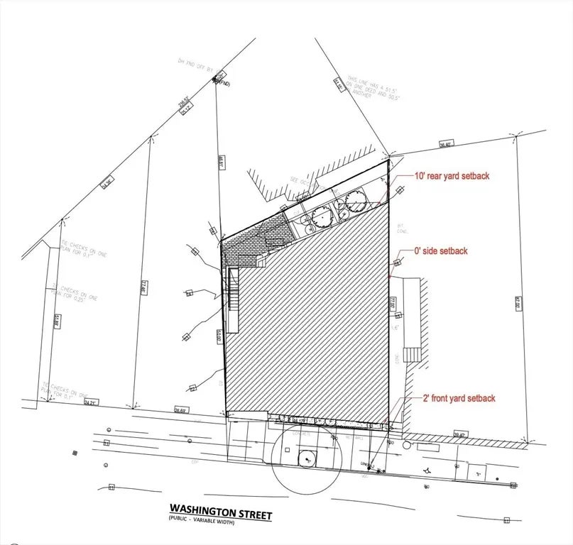
About 7 Washington

Rare high density development opportunity in Somerville with ZBA approved plans for up to 10 units. This is a prime chance to invest in one of Somerville’s most sought-after neighborhoods. Currently used as a tenanted single-family residence, this MR-4 zoned lot allows for 4-story development - ideal for condo sellout, or multi-family hold. located less than 0.4 miles from the Green Line Extension and just minutes from Sullivan Square, Union Square, and Route 93, this property offers exceptional accessibility. Easy access into Boston and Assembly. Plans can either be advanced or modified to suit your vision, with options for lower unit count / create larger units.

Features of 7 Washington

MLS® # 73382249
Price $1,375,000
Acres 0.07
Type Land
Sub-Type Residential
Status Active

Community Information

Address 7 Washington
City Somerville
County Middlesex
State MA
Zip Code 02143

Amenities

Is Waterfront No
Has Pool No

Interior

Fireplace No

Exterior

Lot Description Other

Additional Information

Zoning MR4

Listing Details

Agent Ramsay And Company
Office Leading Edge Real Estate

Listing Map

Request a Showing

Provide a valid email address.
When would you like to view this property?